ค้นหารีวิวและสาระน่ารู้ เรื่องบ้านมากมายได้ที่นี่!
รีวิวบ้าน คอนโด ทาวน์โฮม ทำเล โครงการพรีวิว ข่าวอสังหาฯ และสาระน่ารู้กว่า 2,000 รายการ
พรีวิว เดอะ โฮล์ม สาทร-บางแค (The Holmes Sathorn-Bangkhae)
เตรียมพบกับ เดอะ โฮล์ม สาทร-บางแค พรีเมี่ยมทาวน์โฮม 3 ชั้น ฟังก์ชั่นบ้านเดี่ยว ตอบโจทย์ทุกไลฟ์สไตล์ชีวิตคนเมืองรุ่นใหม่ บนทำเลสะดวกขั้นสุดใจกลางบางแค เชื่อมต่อทุกการเดินทางติด MRT บางแค ราคาเริ่ม 5.29 ลบ.*
เงื่อนไขการเป็นเจ้าของ
ทำเลและการเดินทาง
Master Plan

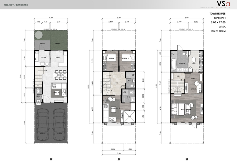
Unit Plan
ทาวน์โฮม 3 ชั้น หน้ากว้าง 5 ม. พื้นที่ใช้สอย 165.20 ตร.ม.
ฟังก์ชันบ้านเดี่ยว 4 ห้องนอน 4 ห้องน้ำ 2 ที่จอดรถ

สรุป by Homezoomer

เตรียมพบกับ เดอะ โฮล์ม สาทร-บางแค พรีเมี่ยมทาวน์โฮม 3 ชั้น ฟังก์ชั่นบ้านเดี่ยว ตอบโจทย์ทุกไลฟ์สไตล์ชีวิตคนเมืองรุ่นใหม่ บนทำเลสะดวกขั้นสุดใจกลางบางแค เชื่อมต่อทุกการเดินทางติด MRT บางแค ราคาเริ่ม 5.29 ล้านบาท ลงทะเบียนรับส่วนลดสูงสุด 300,000 บาท >>> คลิก. XXXX
โครงการพรีเมี่ยมทาวน์โฮม 3 ชั้น ที่มีความเป็นส่วนตัวสูงด้วยจำนวนยูนิตที่พักอาศัยเพียง 34 ยูนิตเท่านั้น บนพื้นที่โครงการ 3-0-54 ไร่ แบบบ้านภายในโครงการเป็นทาวน์โฮม 3 ชั้น หน้ากว้าง 5 ม. พื้นที่ใช้สอยเริ่ม 165.20 ตร.ม. ฟังก์ชัน 4 ห้องนอน 4 ห้องน้ำ มีพื้นที่จอดรถ 2 คัน
The Holmes สาทร-บางแค ตั้งอยู่บนทำเลศักยภาพใจกลางบางแค เดินทางสะดวกเชื่อมต่อทุกการเดินทาง ติดรถไฟฟ้า MRT บางแค ตอบโจทย์ทุกไลฟ์สไตล์ชีวิตของคนเมืองรุ่นใหม่
ลงทะเบียน คลิก XXX
Tag
เนื้อหาที่น่าสนใจ
คอนโดมิเนียม
- คอนโดใกล้รถไฟฟ้า Airport Link
- คอนโดใกล้รถไฟฟ้า BTS
- คอนโดใกล้รถไฟฟ้า MRT
- คอนโดอารียา (AREEYA PROPERTY)
- คอนโด ลุมพินี LPN
- คอนโดคิวเฮ้าส์ Q.HOUSE
- คอนโดเจ้าพระยามหานคร CMC
- คอนโดอนันดา (ANANDA)
- คอนโดเอพี (AP)
- คอนโดนารายณ์ NARAI PROPERTY
- คอนโดพฤกษา PRUKSA
- คอนโดลลิล LALIN PROPERTY
- คอนโดศุภาลัย SUPALAI
- คอนโดเมเจอร์ MAJOR DEVELOPMENT
- คอนโดเสนา SENA
- คอนโดเอสซี แอสเสท SC ASSET
- คอนโดแกรนด์ ยู GRAND U
- คอนโดปริญสิริ PRINSIRI
- คอนโดแลนด์แอนด์เฮ้าส์ LAND&HOUSES
- คอนโดแสนสิริ SANSIRI
- คอนโดโนเบิล NOBLE DEVELOPMENT
- คอนโดไรมอน แลนด์ RAIMON LAND
คอนโด ใกล้รถไฟฟ้า
-
คอนโด ใกล้ BTS อโศก
-
คอนโด ใกล้ BTS ทองหล่อ
-
คอนโด ใกล้ BTS เอกมัย
-
คอนโด ใกล้ BTS พระโขนง
-
คอนโด ใกล้ BTS อ่อนนุช
-
คอนโด ใกล้ BTS อุดมสุข
-
คอนโด ใกล้ BTS บางนา
-
คอนโด ใกล้ BTS พญาไท
-
คอนโด ใกล้ BTS อารีย์
-
คอนโด ใกล้ BTS สะพานควาย
-
คอนโด ใกล้ BTS สะพานตากสิน
-
คอนโด ใกล้ BTS กรุงธนบุรี
-
คอนโด ใกล้ BTS วงเวียนใหญ่
-
คอนโด ใกล้ BTS บางหว้า
Contact Us
ติดต่อโฆษณาได้ที่
โทร. 02–663–8697
หรือ 092–369–3622
Line : Homezoomer
Facebook : Homezoomer
E-mail : contact@homezoomer.com
พรีวิว เคฟ ซีด เกษตร (Kave Seed Kaset) 